03831- 297199  Förderverein NGZ St. Nikolai Stralsund e.V., Auf dem Nikolaikirchhof 1, 18439 Stralsund

2022 - Buttler Architekten

Sie sind hier: Startseite » Das NGZ Projekt » 2022 - Buttler Architekten

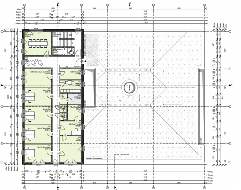
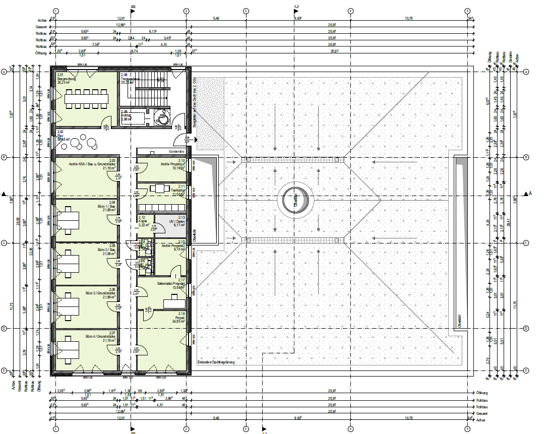
Neu Entwurf NGZ 2022-2023

NGZ 2022/23

  • Als Folge der nötig gewordenen Ausschreibung erhielt im Zuge des Vergabeverfahren das renommierte Rostocker Architekturbüro buttler Architekten den Auftrag das Projekt NGZ nun zu einem finalen Ergebnis zu bringen. Grundlage dafür war die durch den Förderverein NGZ im Jahr 2022 in Auftrag gegebene Studie beim bekannten Stralsunder Architekturbüro Lobeck & Stuhr.

  • Dieses war notwendig geworden, da wir uns auf Grund der neuen Grundstücksituation an der Hans-Fallada-Str. sicher waren, dass ein neuer Städtebaulich ins umliegende Gebiet passender Entwurf notwendig ist.

  • Aktuell hat die Kirchgemeinde die Leistungsphase 4 ausgelöst, die zur Erstellung des Bauantrages führt. Nun geht es mit Geschwindigkeit voran.

buttler Architekten Rostock

Das Architekturbüro buttler architekten wurde 1994 in Rostock gegründet und beschäftigt ein kompetentes Team aus Architekten, Bauüberwachern, Konstrukteuren sowie kaufmännischen Angestellten. Seit fast 30 Jahren planen und realisieren wir komplexe, nachhaltige Bauvorhaben im öffentlichen, privaten und sozialen Bereich. Der Planungsschwerpunkt liegt dabei besonders auf Bildungsbauten und Kindertagesstätten, Museums- und Ausstellungsbauten, Wohnbauten und Pflegeeinrichtungen sowie Büro- und Verwaltungsbauten. Unser vollumfängliches Arbeitsspektrum reicht von der Erstellung städtebaulicher Konzepte und Entwurfsstudien, über die klassische Gebäudeplanung, bis hin zu konkreter Innenarchitektur und individuellem Einrichtungsdesign.

Die buttler architekten GmbH ist in allen Leistungsphasen als Objektplaner Gebäude sowie als Generalplaner in den Bereichen Neubau, Sanierung und Denkmalpflege tätig. Unser hochqualifiziertes Team aus Architekten, Ingenieuren, Konstrukteuren sowie kaufmännischen Angestellten arbeitet nach einem strengen, internen Qualitätsmanagementsystem und nimmt regelmäßig an fachspezifischen Fortbildungen teil. Außerdem engagieren wir uns im Landesvorstand des BDA M-V (Bund Deutscher Architekten), als Preisrichter bei diversen Architekturwettbewerben sowie als aktive Mitglieder in der Architektenkammer Mecklenburg-Vorpommern.

www.buttler-architekten.com

Wir verwenden Cookies um unsere Website zu optimieren und Ihnen das bestmögliche Online-Erlebnis zu bieten. Mit dem Klick auf „Alle erlauben“ erklären Sie sich damit einverstanden. Weiterführende Informationen und die Möglichkeit, einzelne Cookies zuzulassen oder sie zu deaktivieren, erhalten Sie in unserer Datenschutzerklärung.