03831- 297199  Förderverein NGZ St. Nikolai Stralsund e.V., Auf dem Nikolaikirchhof 1, 18439 Stralsund

2021 - Studie Stuhr & Lobeck

Sie sind hier: Startseite » Das NGZ Projekt » 2021 - Studie Stuhr & Lobeck

Die Studie

Die Studie

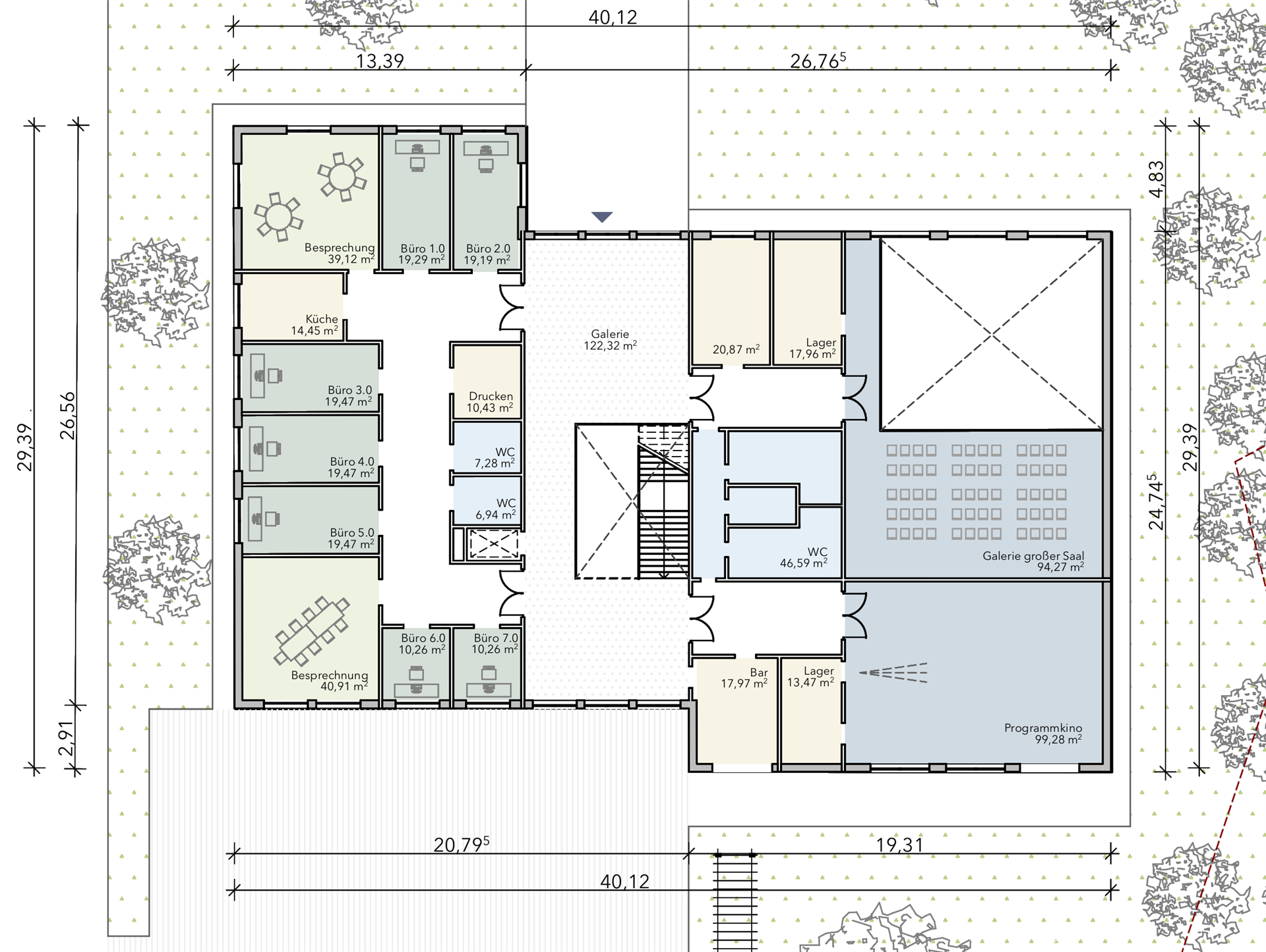
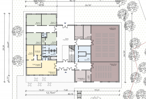
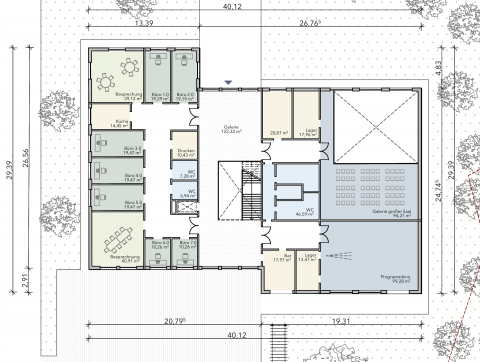
  • Im Jahr 2021 gaben wir als Förderverein in Vorbereitung auf die neue Ausschreibung eine Studie beim bekannten Stralsunder Architekturbüro Lobeck & Stuhr in Auftrag.

  • Dieses war notwendig geworden, da wir uns auf Grund der neuen Grundstücksituation an der Hans-Fallada-Str. sicher waren, dass ein neuer Städtebaulich ins umliegende Gebiet passender Entwurf notwendig ist.

  • Diese völlig neue Grundlagenarbeit mit frischem Ansatz und Open Mind führte zu der Vorlage für die spätere Ausschreibung, welche zum Entwurf der Architekten Buttler aus Rostock führte.

Das Ingenieurbüro Stuhr & Lobeck

Hinter dem Namen Stuhr & Lobeck steht ein freundliches und lösungsfokussiertes Team, welches sich aus dem Inhaber Dipl.-Ing. Jens Stuhr und weiteren Mitarbeiter/innen, Ingenieur/innen und Architekt/innen zusammensetzt.

Das Ingenieurbüro Stuhr & Lobeck wurde im Frühsommer 1996 gegründet und hat seinen Sitz in Stralsund am Knieperdamm 74.

Unser Schwerpunkt liegt neben der Umsetzung von sozialen Einrichtungen wie Kindergärten und Wohnheimen vor allem im Ein- und Mehrfamilienhausbau sowie im gewerblichen Bau. Zudem haben wir auch Erfahrung im Industriebau. Wir planen und betreuen Bauvorhaben als Neubauten oder auch als Sanierungsobjekte.

https://www.stuhr-lobeck.de/

Wir verwenden Cookies um unsere Website zu optimieren und Ihnen das bestmögliche Online-Erlebnis zu bieten. Mit dem Klick auf „Alle erlauben“ erklären Sie sich damit einverstanden. Weiterführende Informationen und die Möglichkeit, einzelne Cookies zuzulassen oder sie zu deaktivieren, erhalten Sie in unserer Datenschutzerklärung.